Skip to main content
Spacious Kitchen at One 333, Illinois, 60605

1, 2 & 3 Bedroom Apartments & Penthouses in South Loop


The Next Level In Apartment Living

Don’t see the apartment you’re interested in? Enter the apartment number your leasing consultant provided you with in the Apt# search below.

More Filters

Filters

Map View

Welcome to Your Personal Retreat in South Loop


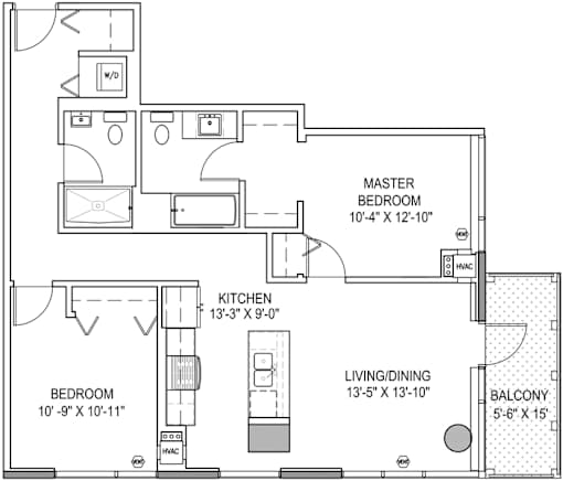
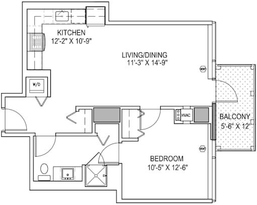
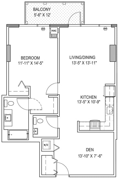
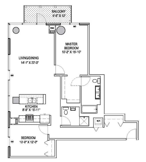
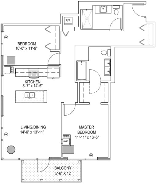
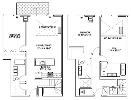
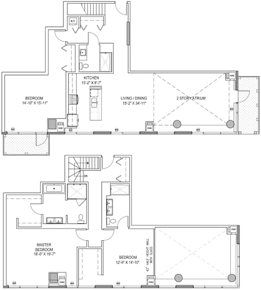
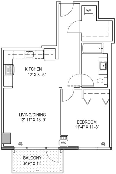
View a delightful selection of one-, two-, and three-bedroom apartments and penthouses in South Loop, Chicago and check current availability today. Our ONE333 pet-friendly homes feature several eco-conscious amenities intended for stress-free and convenient living. Inside each unit ranging from 668 square feet to 2,466 square feet, you’ll enjoy a rich urban ambiance with concrete surfaces and soaring ceilings. ONE333 offers thoughtfully-designed amenities, including stainless steel appliances, sustainable laminate flooring, and in-unit washers and dryers to meet everything on your must-have list. View photos or a virtual tour from anywhere and discover why ONE333 should be your first choice! Schedule a tour today and lease one of our innovative luxury apartments and penthouses for rent in South Loop, Chicago.

Once you’re settled in, start exploring our community and all that it has to offer. Whether you like to stay active or just mingle with your neighbors, our South Loop apartments also have desirable community spaces, including a social lounge with games, a state-of-the-art fitness center, and an onsite business center. If you need to get out for some retail therapy or quality entertainment, our location puts you directly in the South Loop, with the Roosevelt Collection, the Shed Aquarium, and Grant Park just a few short minutes away.

Find your nest amongst our gorgeous apartment and penthouse in Chicago for rent. Schedule your private tour today!

Featured Partnership: The Habitat Company has partnered with CORT Furniture to offer our residents the opportunity to furnish their apartment home. If you would like to learn more about this partnership & how you can furnish your new apartment home, please click on the link below to submit an inquiry. A CORT representative will reach out to you directly to discuss all options, tiers, and pricing.

Available Extras

Parking
* Bike Storage - $10/month
* Standard Parking - $340/month
* Tandem (2 cars or 1 truck) - $400


Utilities
* 1-bed - $130
* 2-bed - $160
* Penthouse - $195